Trong thi công phòng tắm, bản vẽ lắp đặt thiết bị vệ sinh chính là “kim chỉ nam” quyết định 80% độ chính xác và thẩm mỹ công trình. Chỉ cần đọc sai một thông số nhỏ, bạn có thể phải đục phá, sửa chữa tốn kém và mất thời gian. Thực tế, việc hiểu đúng bản vẽ giúp tiết kiệm đến 30% thời gian thi công, hạn chế mua nhầm phụ kiện và tránh lắp đặt sai vị trí. Vậy làm thế nào để đọc bản vẽ chuẩn kỹ thuật ngay từ đầu? Bài viết này sẽ hướng dẫn chi tiết từ A–Z.

Tại sao phải nắm rõ bản vẽ lắp đặt thiết bị vệ sinh?
Trước khi bắt tay vào thi công bất kỳ công trình phòng tắm nào, việc hiểu rõ bản vẽ lắp đặt thiết bị vệ sinh không chỉ là yêu cầu kỹ thuật mà còn là yếu tố quyết định đến chất lượng, chi phí và tiến độ toàn bộ dự án.
Đảm bảo tính kỹ thuật và độ bền hệ thống: Bản vẽ lắp đặt thiết bị vệ sinh thể hiện chi tiết độ dốc ống thoát, vị trí cấp nước nóng – lạnh, cao độ lắp đặt và tim trục từng thiết bị. Nếu không đọc kỹ, hệ thống thoát nước có thể sai độ dốc (chuẩn thường 1–2%), gây ứ đọng, bốc mùi hoặc tắc nghẽn sau thời gian sử dụng. Ngoài ra, việc xác định sai vị trí đầu chờ nước sẽ dẫn đến lệch tâm khi lắp đặt, ảnh hưởng đến áp lực nước và tuổi thọ phụ kiện. Một hệ thống kỹ thuật đúng ngay từ đầu giúp hạn chế rò rỉ, nứt vỡ âm tường và đảm bảo vận hành bền bỉ nhiều năm.
Đảm bảo tính thẩm mỹ và công năng sử dụng: Phòng tắm hiện đại không chỉ cần bền mà còn phải đẹp và tiện nghi. Bản vẽ giúp cân đối khoảng cách giữa bồn cầu, lavabo và khu vực tắm để đảm bảo lối đi thoải mái, không vướng víu khi sử dụng. Ví dụ, khoảng cách tối thiểu từ tâm bồn cầu đến tường bên nên đạt 300 mm để tạo sự thoải mái. Nếu bố trí sai, không gian sẽ chật chội, mất cân đối và khó đạt được tổng thể sang trọng dù sử dụng thiết bị cao cấp.
Tối ưu chi phí và hạn chế phát sinh sửa chữa: Thi công sai bản vẽ là nguyên nhân hàng đầu dẫn đến đục phá, thay đổi hệ thống ống chờ hoặc mua nhầm phụ kiện. Mỗi lần sửa chữa không chỉ tốn chi phí vật tư mà còn ảnh hưởng đến tiến độ bàn giao công trình. Khi nắm rõ bản vẽ lắp đặt thiết bị vệ sinh, bạn có thể kiểm soát chính xác số lượng phụ kiện, chiều dài ống, vị trí lắp đặt và hạn chế tối đa sai sót. Thực tế cho thấy, đọc hiểu bản vẽ kỹ lưỡng có thể giúp tiết kiệm đến 20–30% thời gian và chi phí thi công.
Các thành phần trong bản vẽ lắp đặt thiết bị vệ sinh
Để đọc đúng và triển khai chính xác, trước hết bạn cần hiểu rõ cấu trúc của một bản vẽ lắp đặt thiết bị vệ sinh tiêu chuẩn gồm những phần nào và mỗi phần thể hiện điều gì.
Sơ đồ mặt bằng (Layout tổng thể)
Sơ đồ mặt bằng trong bản vẽ lắp đặt thiết bị vệ sinh là hình chiếu từ trên xuống, thể hiện toàn bộ cách bố trí thiết bị trong không gian phòng tắm. Tại đây, bạn có thể xác định chính xác vị trí bồn cầu, lavabo, sen tắm, phễu thu sàn và hướng đi của các tuyến ống cấp – thoát nước. Phần này giúp kiểm tra sự hợp lý về diện tích sử dụng, lối di chuyển và khoảng cách tối thiểu giữa các thiết bị theo tiêu chuẩn kỹ thuật.
Bên cạnh yếu tố bố cục, sơ đồ mặt bằng còn đóng vai trò quan trọng trong việc xác định tim ống chờ trước khi thi công phần thô. Nếu xác định sai vị trí ngay từ bước này, toàn bộ hệ thống kỹ thuật âm sàn có thể phải đục phá để điều chỉnh. Vì vậy, đọc kỹ layout tổng thể sẽ giúp giảm thiểu sai sót, tiết kiệm chi phí và đảm bảo thi công đúng định hướng thiết kế ban đầu.
Sơ đồ mặt đứng (Chi tiết cao độ lắp đặt)
Sơ đồ mặt đứng thể hiện chi tiết chiều cao lắp đặt của từng thiết bị so với mặt sàn hoàn thiện. Các thông số như chiều cao lavabo (800–850 mm), củ sen (khoảng 900 mm), bát sen (1.800–2.100 mm) hay vị trí van cấp nước đều được ghi rõ trong phần này. Đây là căn cứ quan trọng để đảm bảo thiết bị được lắp đúng tầm sử dụng, mang lại sự thoải mái và thuận tiện trong quá trình sinh hoạt hằng ngày.
Ngoài yếu tố công năng, cao độ lắp đặt còn ảnh hưởng trực tiếp đến thẩm mỹ tổng thể phòng tắm. Nếu thiết bị lắp lệch chuẩn hoặc không đồng bộ, không gian sẽ mất cân đối và giảm giá trị thẩm mỹ. Do đó, trước khi ốp gạch hoàn thiện, cần kiểm tra kỹ cao độ đầu chờ theo đúng bản vẽ để tránh tình trạng phải khoan đục chỉnh sửa về sau.
Hệ thống ký hiệu kỹ thuật và chú thích
Trong bản vẽ lắp đặt thiết bị vệ sinh, hệ thống ký hiệu kỹ thuật giúp phân biệt rõ các đường ống và hạng mục thi công. Thông thường, đường nước nóng được ký hiệu màu đỏ, nước lạnh màu xanh và ống thoát nước màu đen. Ngoài ra còn có ký hiệu về cao độ sàn, tim trục thiết bị, đường điện âm tường và ghi chú về vật liệu sử dụng cho từng hạng mục cụ thể.
Việc hiểu và giải mã chính xác các ký hiệu này giúp đội thi công tránh nhầm lẫn trong quá trình đi ống và đấu nối. Đặc biệt ở công trình có nhiều hệ thống chồng chéo, chỉ cần đọc sai một ký hiệu cũng có thể gây lắp nhầm đường nước hoặc sai vị trí thoát sàn. Vì vậy, phần chú thích kỹ thuật luôn cần được kiểm tra kỹ trước khi triển khai thực tế.
Cách đọc bản vẽ lắp đặt thiết bị vệ sinh chi tiết
Sau khi hiểu cấu trúc tổng thể của bản vẽ, bước quan trọng tiếp theo là biết cách đọc chi tiết từng hạng mục cụ thể trong bản vẽ lắp đặt thiết bị vệ sinh để tránh sai lệch khi triển khai thực tế.
1. Bản vẽ lắp đặt Bồn cầu (Toilet)
Khi đọc bản vẽ lắp đặt bồn cầu, yếu tố quan trọng nhất là xác định chính xác tâm xả (khoảng cách từ tim ống thoát đến tường hoàn thiện). Thông số phổ biến hiện nay là 300 – 305 mm đối với bồn cầu thoát sàn. Nếu sai lệch dù chỉ 10–20 mm, việc lắp đặt sẽ gặp khó khăn hoặc không thể khớp hoàn toàn với cổ ống chờ. Ngoài ra, cần kiểm tra hướng thoát (thoát sàn hay thoát ngang) để lựa chọn đúng chủng loại thiết bị.
Bên cạnh tâm xả, vị trí van cấp nước cũng cần được đọc kỹ trên bản vẽ. Van thường đặt cách sàn khoảng 200 mm và lệch sang trái hoặc phải tùy thiết kế. Cần lưu ý thêm độ dày lớp gạch ốp lát để tránh hụt đầu chờ sau hoàn thiện. Việc đọc đúng các thông số này giúp đảm bảo bồn cầu lắp khít, không rò rỉ và đạt tính thẩm mỹ cao.

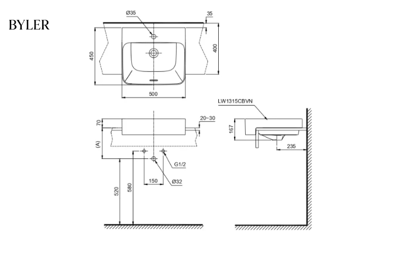
2. Bản vẽ lắp đặt Chậu rửa mặt (Lavabo)
Đối với lavabo, bản vẽ thường thể hiện rõ chiều cao lắp đặt từ sàn hoàn thiện đến mặt chậu, phổ biến trong khoảng 800 – 850 mm. Đây là mức cao độ tiêu chuẩn đảm bảo sự thoải mái khi sử dụng cho đa số người trưởng thành. Ngoài ra, cần xác định chính xác trục tâm chậu để đặt đường cấp nước nóng – lạnh cân đối hai bên, tránh tình trạng lệch trục gây mất thẩm mỹ.
Hệ thống thoát nước dưới lavabo, đặc biệt là ống chữ P (xi phông), cũng cần được bố trí đúng vị trí theo bản vẽ. Nếu đặt sai cao độ hoặc lệch tâm, quá trình lắp đặt sẽ khó khăn và dễ phát sinh rò rỉ. Vì vậy, khi đọc bản vẽ lắp đặt thiết bị vệ sinh cho lavabo, cần đối chiếu kỹ thông số kỹ thuật của từng thương hiệu trước khi đi ống chờ.

3. Bản vẽ lắp đặt Sen tắm/Vòi sen
Khi đọc bản vẽ sen tắm, trước hết cần kiểm tra khoảng cách giữa hai đầu chờ nước nóng – lạnh, tiêu chuẩn phổ biến là 150 mm (tính từ tâm đến tâm). Nếu khoảng cách này sai lệch, củ sen sẽ không lắp vừa hoặc phải dùng cút chỉnh lệch gây mất thẩm mỹ. Đồng thời, cần xác định rõ cao độ lắp đặt củ sen, thường khoảng 900 mm tính từ sàn hoàn thiện.
Ngoài củ sen, bản vẽ còn thể hiện chiều cao bát sen hoặc thanh trượt sen cây, dao động từ 1.800 – 2.100 mm tùy thiết kế. Khi thi công, cần tính thêm độ dày lớp gạch ốp và lớp chống thấm để tránh sai số cao độ. Việc đọc kỹ các thông số này giúp đảm bảo áp lực nước ổn định và mang lại trải nghiệm tắm thoải mái.

4. Bản vẽ hệ thống thoát sàn
Hệ thống thoát sàn là yếu tố quyết định khả năng thoát nước nhanh và tránh đọng nước trong khu vực tắm. Khi đọc bản vẽ, cần xác định chính xác vị trí phễu thu sàn, thường đặt tại điểm thấp nhất của sàn tắm. Bản vẽ cũng thể hiện hướng và độ dốc sàn, thông thường từ 1–2% để đảm bảo nước chảy tự nhiên về phễu thu.
Ngoài vị trí, cần kiểm tra đường kính ống thoát và hướng kết nối với hệ thống thoát chính của công trình. Nếu không đọc kỹ, sàn có thể thoát nước chậm hoặc gây trào ngược khi sử dụng đồng thời nhiều thiết bị. Do đó, đây là hạng mục cần được kiểm tra cẩn thận trước khi cán nền và ốp lát hoàn thiện.
Việc nắm chắc cách đọc chi tiết từng thiết bị sẽ giúp bạn triển khai thi công chính xác, hạn chế tối đa đục phá sửa chữa và đảm bảo công trình đạt chuẩn kỹ thuật ngay từ đầu.
Xem thêm: Showroom thiết bị vệ sinh đẹp nhất hiện nay
Thông số bản vẽ lắp đặt thiết bị vệ sinh cần nhớ
Khi đọc bản vẽ lắp đặt thiết bị vệ sinh, việc nắm chắc các kích thước tiêu chuẩn giúp kiểm tra nhanh độ chính xác trước khi thi công và hạn chế tối đa sai sót. Dưới đây là bảng thông số chi tiết thường dùng trong thi công dân dụng và căn hộ hiện nay:
| Thiết bị | Thông số kỹ thuật | Kích thước tiêu chuẩn |
| Lavabo treo tường | Chiều cao mặt chậu so với sàn hoàn thiện | 800 – 850 mm |
| Cao độ đầu chờ cấp nước | 550 – 600 mm | |
| Khoảng cách 2 đầu nóng – lạnh | 100 – 150 mm | |
| Cao độ ống thoát chờ | 500 – 550 mm | |
| Bồn cầu thoát sàn | Tâm xả cách tường hoàn thiện | 300 – 305 mm |
| Van cấp nước cách sàn | 150 – 200 mm | |
| Khoảng cách tối thiểu từ tâm bồn cầu đến tường bên | ≥ 300 mm | |
| Bồn cầu treo tường | Tâm xả ngang | Theo khung âm tường (thường 180 – 230 mm) |
| Chiều cao mặt ngồi | 400 – 420 mm | |
| Sen tắm âm/tường | Khoảng cách 2 đầu nóng – lạnh | 150 mm |
| Cao độ củ sen | 900 – 1.000 mm | |
| Cao độ bát sen cố định | 1.800 – 2.100 mm | |
| Phễu thu sàn | Độ dốc sàn về phễu | 1 – 2% |
| Đường kính ống thoát | Ø60 – Ø90 mm |
Việc đối chiếu nhanh các thông số trên với bản vẽ thực tế sẽ giúp đảm bảo thi công đúng kỹ thuật, đúng cao độ và hạn chế phát sinh chỉnh sửa sau hoàn thiện.
Quy trình triển khai từ bản vẽ ra thực tế thi công
Sau khi đã đọc và hiểu rõ bản vẽ lắp đặt thiết bị vệ sinh, bước tiếp theo quan trọng không kém là triển khai chính xác ngoài công trình theo đúng thông số kỹ thuật đã được phê duyệt.
Bước 1: Kiểm tra kích thước thực tế so với bản vẽ
Trước khi thi công, cần đo đạc lại toàn bộ kích thước thực tế của phòng tắm và đối chiếu với bản vẽ CAD. Các yếu tố cần kiểm tra gồm: chiều dài – rộng phòng, cao độ sàn thô, vị trí tường chịu lực và hộp kỹ thuật. Trong nhiều trường hợp, sai số xây dựng thực tế có thể lệch vài milimet đến vài centimet so với thiết kế. Nếu không rà soát kỹ, việc đi ống chờ theo bản vẽ có thể dẫn đến lệch tim thiết bị khi hoàn thiện.
Bước 2: Định vị và đánh dấu vị trí chờ kỹ thuật
Sau khi xác nhận kích thước chuẩn, tiến hành định vị tim ống cấp – thoát nước và đánh dấu trực tiếp lên sàn, tường. Các vị trí cần xác định chính xác gồm: tâm xả bồn cầu, trục lavabo, khoảng cách hai đầu nước nóng – lạnh của sen tắm và vị trí phễu thu sàn. Giai đoạn này yêu cầu sử dụng thước laser hoặc nivo để đảm bảo độ chính xác cao, tránh tình trạng đặt sai cao độ trước khi trát hoặc ốp lát.
Bước 3: Thi công hệ thống ống thô và kiểm tra áp lực
Tiếp theo là giai đoạn đi ống âm sàn, âm tường theo đúng vị trí đã đánh dấu. Sau khi lắp đặt xong hệ thống cấp nước, cần tiến hành thử áp lực để kiểm tra rò rỉ trước khi che phủ. Đối với hệ thống thoát nước, cần kiểm tra độ dốc và khả năng thoát nhanh bằng cách xả thử nước. Đây là bước quan trọng nhằm đảm bảo toàn bộ hệ thống vận hành ổn định trước khi bước vào giai đoạn hoàn thiện.
Bước 4: Hoàn thiện lắp đặt thiết bị và nghiệm thu
Sau khi hoàn tất ốp lát, tiến hành lắp đặt thiết bị hoàn thiện như bồn cầu, lavabo, sen tắm và phụ kiện đi kèm. Cần kiểm tra lại độ kín khít, khả năng xả nước, áp lực nước nóng – lạnh và độ chắc chắn khi sử dụng. Cuối cùng, thực hiện nghiệm thu tổng thể theo đúng bản vẽ lắp đặt thiết bị vệ sinh và bàn giao công trình khi mọi hạng mục đạt yêu cầu kỹ thuật.
Triển khai đúng quy trình từ bản vẽ đến thực tế không chỉ giúp hạn chế đục phá sửa chữa mà còn đảm bảo công trình đạt chuẩn kỹ thuật, bền vững và thẩm mỹ lâu dài.
Kết luận
Đọc và hiểu đúng bản vẽ lắp đặt thiết bị vệ sinh là bước nền tảng quyết định trực tiếp đến chất lượng, độ bền và tính thẩm mỹ của toàn bộ công trình phòng tắm. Khi nắm chắc các thông số về tâm xả, cao độ lắp đặt, khoảng cách nguồn nước và độ dốc thoát sàn, bạn sẽ hạn chế tối đa sai sót kỹ thuật, tránh tình trạng đục phá sửa chữa tốn kém sau khi đã hoàn thiện ốp lát. Việc tuân thủ bản vẽ không chỉ giúp tiết kiệm thời gian thi công mà còn đảm bảo các thiết bị vận hành ổn định, an toàn và đồng bộ trong quá trình sử dụng lâu dài.
Xem thêm: Kích thước lắp đặt thiết bị vệ sinh đúng chuẩn



Bài viết liên quan: